Cette maison conteneur de 30 m², entièrement aménagée selon le concept « clé en main », propose un espace de vie moderne, pratique et adapté à une utilisation tout au long de l’année. Avec une disposition réfléchie des pièces et des équipements intégrés, cette unité est idéale pour ceux qui recherchent une solution de logement rapide, efficace et confortable.
**Caractéristiques générales :**
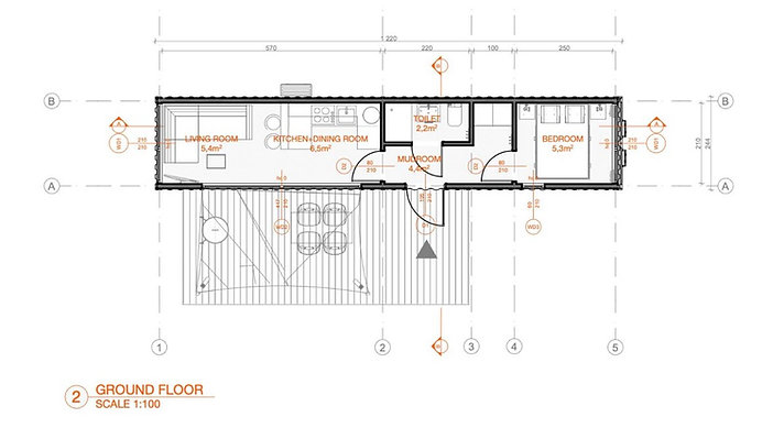
– Surface totale : 30 m²
– Disposition intérieure :
– Chambre séparée pour assurer une intimité maximale
– Salle de bain séparée, entièrement équipée
– Séjour avec coin cuisine, parfait pour un espace de vie ouvert et convivial
– Penderie et vestibule pour un rangement pratique et organisé
– Dimensions extérieures : 12,2 m de longueur, 2,5 m de largeur, 2,9 m de hauteur
– Dimensions intérieures : 11,9 m de longueur, 2,1 m de largeur, 2,5 m de hauteur
Isolation et confort thermique :
– Isolation : Panneaux isolants en PUR avec un coefficient thermique U=0,18 W/m²K, assurant une excellente performance énergétique, idéale pour un usage tout au long de l’année, même dans des conditions climatiques extrêmes.
– Chauffage et refroidissement :
– Pompe à chaleur air-air pour garantir un confort thermique optimal.
– Chauffage électrique au sol pour une diffusion uniforme de la chaleur.
– Chaudière électrique de 50L pour la production d’eau chaude.
Fenêtres et ouvertures :
– Fenêtres en PVC à triple vitrage, conçues pour offrir une haute performance énergétique et une isolation acoustique renforcée. La hauteur des fenêtres a été augmentée à 240 cm, maximisant ainsi l’entrée de lumière naturelle à l’intérieur.
Finitions extérieures :
– Façade : Peinte pour un design épuré et moderne, assurant une durabilité à long terme.
– Toit : Peint et traité pour résister aux intempéries.
Inclusions dans le prix :
– Bâtiment complet et achevé selon la norme « clé en main ».
– Éclairage intérieur et extérieur : Système d’éclairage fonctionnel et efficace.
– Installations complètes pour l’électricité, l’eau et les égouts, prêtes à être raccordées.
– Système de ventilation : Garantit un renouvellement d’air constant et une qualité de l’air intérieur optimale.
– Murs intérieurs : Panneaux Forestia, offrant une finition élégante et moderne.
– Revêtement de sol : Panneaux de vinyle résistants, faciles à entretenir et esthétiques.
– Salle de bain entièrement équipée : Ensemble blanc comprenant lavabo, douche, WC et chaudière de 50L, prête à l’emploi.
– Chauffage : En plus de la pompe à chaleur, des radiateurs électriques sont installés, chacun doté d’un thermostat pour un contrôle précis de la température.
– Portes intérieures : Portes blanches de 80 cm, assurant une bonne circulation entre les pièces.
Exclusions (non inclus dans le prix) :
– Transport et montage : Les frais de transport et de montage sur site ne sont pas inclus et varieront en fonction de la localisation du projet.
– Fondations : Les fondations nécessaires pour la pose du conteneur doivent être réalisées sur place.
– Raccordement à l’électricité, à l’eau et aux égouts : Ces raccordements doivent être pris en charge localement.
Options disponibles :
– Ajustements pour normes locales : Adaptations spécifiques pour respecter les normes des bâtiments permanents dans le pays de destination.
– Mur extérieur « vert » : Option d’installation de murs végétalisés pour une intégration plus écologique.
– Isolation supplémentaire : Possibilité d’améliorer l’isolation avec un coefficient thermique amélioré de U=0.15-18 W/m²K.
– Stores : Ajout de stores pour les fenêtres, permettant une meilleure gestion de la lumière et de la chaleur.
– Cuisine IKEA personnalisée : Possibilité d’adapter une cuisine en fonction des besoins du client, en utilisant des meubles IKEA.
– Terrasse sur le toit : Option pour ajouter une terrasse, idéale pour maximiser l’espace extérieur et profiter d’une vue panoramique.
Cette maison conteneur de 30 m² clé en main constitue une solution idéale pour ceux qui recherchent une résidence compacte, moderne et prête à l’emploi. Avec des options de personnalisation et une isolation performante, elle est parfaitement adaptée pour une utilisation toute l’année, dans différents types de climats.



Avis
Il n’y a pas encore d’avis.